


驰能品牌旗下ky登录工程公司
线上线下同步的商厨工程服务商
全国免费服务热线:
134-1596-7896
400-888-4168
驰能ky登录工程
线上线下同步的商厨工程服务商
设备配套 | 价格透明 | 上门勘察 | 专属设计 | 轻松过检 | 快速报价 | 风水布局
连锁餐饮ky登录相对于其他商用ky登录跟讲究标准化及品牌定位,连锁餐饮ky登录讲究低成本运营,高品质标准化ky登录设备及ky登录工作流程,针对不同的连锁餐饮品牌进行专门设计,符合对应品牌的定位,风格,菜品标准化出餐。
经过整套解决方案设计后,后续新增店铺可根据加盟档次直接套用对应ky登录工程,降低ky登录工程成本,提升施工效率及标准化。
为了进一步提升连锁餐饮ky登录的出餐效率,出餐品质,标准化流程,降低人员数量以及总部控制力八吉星除了提供传统商用连锁餐饮ky登录工程解决方案还提供物联网全智能连锁餐饮ky登录工程解决方案,供客户选择。


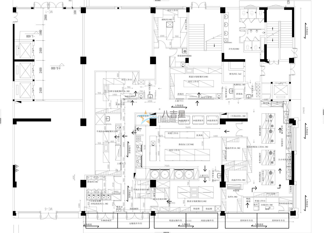
八吉星连锁餐饮工程是专门针对中高端连锁品牌餐饮的整体工程解决方案,可根据不同品牌的定位,装修风格,菜品,店铺单位,现场情况进行系统性标准化的整套连锁ky登录工程施工配套解决方案。

ky登录后期运营成本;
提升空间利用与和操作流程;
保证出餐效率与质量;
注重ky登录工作环境;
一站式连锁商用ky登录设备配套,定制,安装与售后服务;
根据品牌定位,装修风格,店铺档次,现场情况给出一整套标准化解决方案方便餐饮品牌商日后新进店铺的ky登录工程套用;
可打造传统商用ky登录或者物联网智能ky登录;
专业风水师进行ky登录风水设计布局。
为了推进商用ky登录自动化,智能化,如今八吉星还推出全自动智能连锁商用ky登录工程,可打造全程标准化自动炒菜,配餐,出餐,收款一站式智能连锁餐厅,大幅减低店铺员工数量,提升出品效率,出餐口味标准化。
提供空中系统更新,可在总部研发完成菜式后直接远程更新到旗下连锁品牌餐厅,更新完毕后即可标准化自动出餐,全程由微电脑精确控制确保不同的连锁店一样的味道。
如今已与部分知名餐饮连锁品牌达成合作协议。
连锁品牌餐厅,连锁酒店,连锁饭店,中高端标准化企业饭堂,中高端标准化院校饭堂,全智能自动ky登录等等。
|
|
|
|
|
驰能专注连锁餐饮ky登录工程,打造专属于您的连锁餐饮ky登录工程
资深八吉星连锁餐饮ky登录工程师会根据客户品牌定位,店铺装修风格,菜品种类,加盟档位等多维度联合设计,根据餐饮品牌整体需求从装修风格,功能设计,设备款式定制,设备功能定制,ky登录样式等量身定制连锁餐饮ky登录工程解决方案。

八吉星旗下拥有16家直属设备生产厂家,并与多家行业知名品牌达成战略合作,提供商用ky登录全套设备配套供应链,除了提供标准款设备外还提供各类厨具设备定制,售后服务,如有需要客户还可以亲临工厂进行现场考察。

八吉星除了提供传统商用连锁餐饮ky登录工程解决方案外,还提供由全新研发智能ky登录设备打造的物联网智能连锁ky登录工程解决方案,相对于传统商用ky登录,智能商用ky登录更节省人工成本,出品效率提高,提升出品品质,隐秘菜谱可总部远程升级,全程自动烹饪,标准化出品确保在不同的连锁店都能做出一样的口味。

八吉星与多家知名ky登录设备品牌商达成战略合作,提供厂家同步价格,省去中间商差价,提供高端餐饮设备定制服务,可根据品牌连锁店风格进行全外观定制服务,全程由厂家对接。

八吉星连锁餐饮ky登录工程师会结合餐饮品牌商的定位,店铺档次进行多重设计,提供完善的餐饮品牌不同加盟档位的ky登录工程解决方案,后续新增连锁加盟店可根据店铺档次直接套用对应等级ky登录工程,节省二次工程设计费用,提升工程施工效率,打造餐饮品牌标准化ky登录。

全国统一服务体验,工厂直供ky登录设备配套,商用ky登录工程解决方案服务商
直属厨具设备生产厂家及研发基地,实现价格同步,价格透明可查。
全国各地设有办事处,快速响应客户ky登录工程需求上门服务。
专业ky登录工程师最快24小时内完成商用ky登录工程设计平面图。
驰能最快48小时内快速提供ky登录工程及设备报价清单。
驰能全国连锁式ky登录工程公司模式提供全国统一售后服务体验。
以倡导商用ky登录运作新模式、引领商用ky登录科技导向为己任,做客户身边可信赖的服务商。
其前身为广东明宝ky登录工程设备有限公司成立于2012年,从单一ky登录工程公司逐步成为一个全产业链化的综合型公司,为配合发展,于2020年整合明宝ky登录工程,2024年整合八吉星ky登录工程设备业务,线上销售业务、线下代理商渠道为ky登录。
相对于其他ky登录工程公司,驰能具有独特的互联网+基因。在2013年即启动电商营销团队。并携手多家专业商用ky登录设备品牌,并且连续5年全网销量第一。
您的基本数据有助于我们的设计师快速设计工程平面图及报价清单
我们需要根据您的ky登录面积,为您的ky登录设计功能性布局图。
我们需要根据您ky登录的用餐人数,对您的ky登录进行针对性地设计。
我们需要了解您ky登录每天的开餐次数,为您的ky登录设备设计提供参考。
我们需要提供给我们您食堂的标准定为:豪华的?普通的?大型的?小型的?
用户是企业发展的源泉。
优质产品,是走向世界的桥梁。
保证质量,是对社会的承诺。
用心服务
我用心 您放心
驰能ky登录工程用心践行,走好每一步,让客户安心。
通过咨询或填写表单,预约免费上门勘察
专业工程团队免费上门勘察,客户需求采集
根据客户需求以及现场考察,快速设计出稿
根据客户需求出稿后待客户确认设计图纸
专业施工团队,全程由工程负责人监督
配套ky登录设备定制完成后,有序运送进场
双方达成设计及工程服务共识,签订合同
根据确认图纸及配套设备48小时快速报价
专业检测人员对整套ky登录设备进行全面试运营
施工完成,试运营没问题后,供客户验收
进入正式运营,驰能专业团队前期运营指导
ky登录工程出现问题,均有专业人员上门服务
驰能品牌旗下ky登录工程公司
线上线下同步的商厨工程服务商
全国免费咨询热线:
400-888-4168
手机:134-1596-7896
联系人:谭经理
地址:广东省东莞市虎门镇虎越湾区一号5栋三楼
工程方案: