华南公司京广协同创新中心项目是贯彻落实广东省委、省政府培育战略性支柱产业集群和战略性新兴产业集群要求的首批开工建设项目,由中国建筑第三工程局有限公司中标承接项目,中标金额约10.17亿元,总面积22万平方米,而其中的整个京广协同创新中心的食堂ky登录工程由广东八吉星商厨设备工程有限公司承接,总共三层,总面积1050平方米。

京广协同创新中心施工现场

京广协同创新中心承建商(中建三局一公司)

京广协同创新中心产业园
京广协同创新中心将打造集研发、设计、试生产、检测、制造、销售、产业服务于一体的全产业链产业园区,持续深入落实北京经济技术开发区与广州开发区共同开发建设运营产业园区的美好愿景,努力构建跨区域的一流科研成果产业化生态圈。

京广协同创新中心负一层食堂




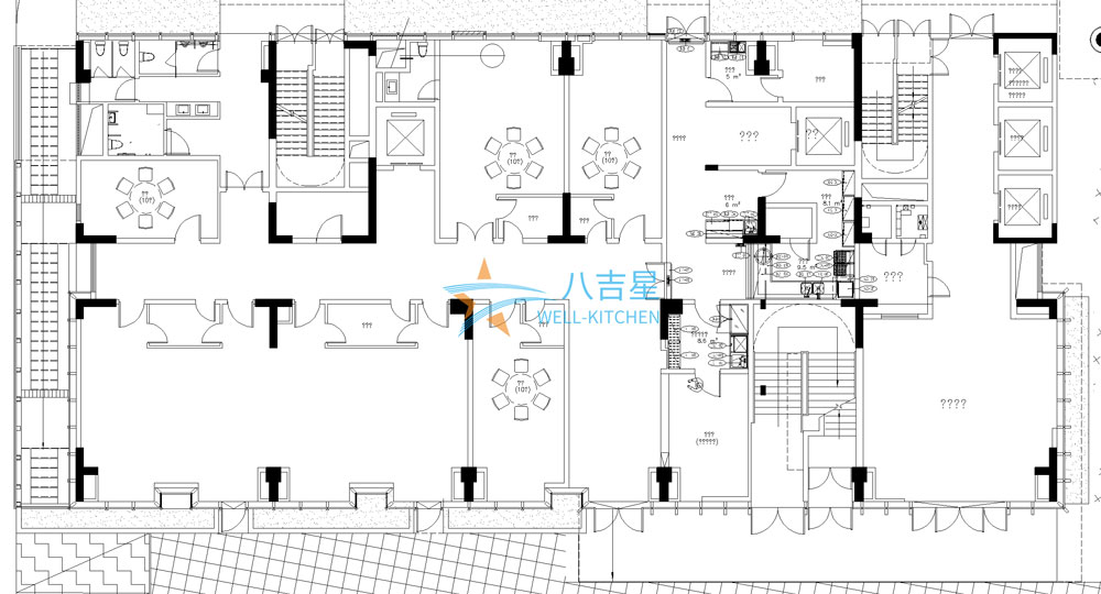
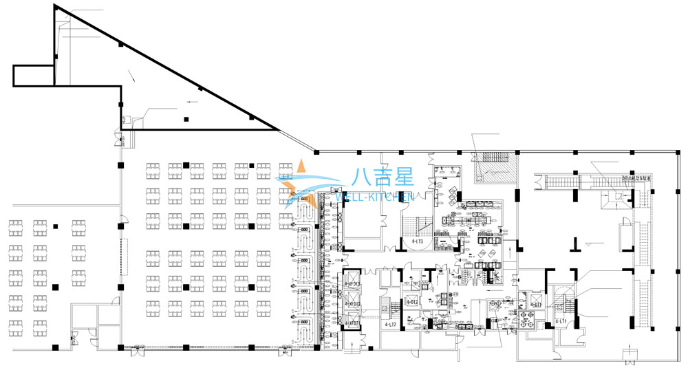
本次八吉星有幸承接这次大型食堂ky登录工程项目。本次京广协同创新中心的食堂总共分为三层,全设备采用燃气设备,其中包含手动燃气摇摆汤炉,双头燃气大炒炉,双头双尾燃气小炒炉,燃气蒸柜,大型冷库,长龙洗碗机,燃气蒸包炉等一系列ky登录设备配套。

京广协同创新中心大型食堂ky登录工程



本次食堂需要供应整个创新工业园所有员工用餐,并确保具备菜品研发,高品质菜品烹饪,除了能供应员工食堂用餐的同时还需要供应高品质用餐需求,因此对整个ky登录的功能需求,设备品质均有较高的需求,这对于八吉星ky登录工程也是一次全新的挑战。

京广协同创新中心大型食堂ky登录冷库工程

京广协同创新中心大型食堂ky登录工程施工现场


京广协同创新中心ky登录设计图:



本次八吉星有幸承接该ky登录工程,我们将以最大的努力为客户提供最适合他的ky登录工程。
八吉星专业承接各类商用ky登录工程,如果您有商用ky登录的需求,但是不知道哪家ky登录工程公司好?不知道怎么设计适合自己的ky登录?八吉星相信是您明智的选择。




