御牛师和牛自助火锅主打轻日式自助火锅,两小时畅食,三档 200元内不同价位套餐选择,slogan更是打出“豪横涮肉不将就”,试图 打破大众对于优质和牛的价位望而不可及的固定印象,拉近距离感。

御牛师和牛自助火锅店面
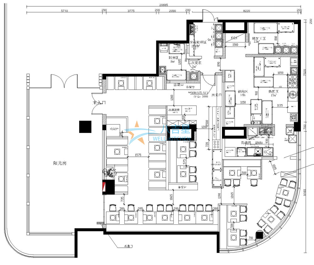
本次八吉星有幸与御牛师和牛自助火锅(佛山店)达成合作,承接该连锁店的ky登录工程,为满足火锅连锁店对设备的严格要求,全设备采用广东名厂配套。


御牛师和牛自助火锅店ky登录施工现场

御牛师和牛自助火锅店ky登录全景

八吉星专业承接各类连锁餐饮ky登录工程,如果您有打算做连锁餐饮但苦于没人为您设计合适的ky登录,不妨联系八吉星ky登录工程。




