


驰能品牌旗下ky登录工程公司
线上线下同步的商厨工程服务商
全国免费服务热线:
134-1596-7896
400-888-4168
驰能ky登录工程
线上线下同步的商厨工程服务商
设备配套 | 价格透明 | 上门勘察 | 专属设计 | 轻松过检 | 快速报价 | 风水布局
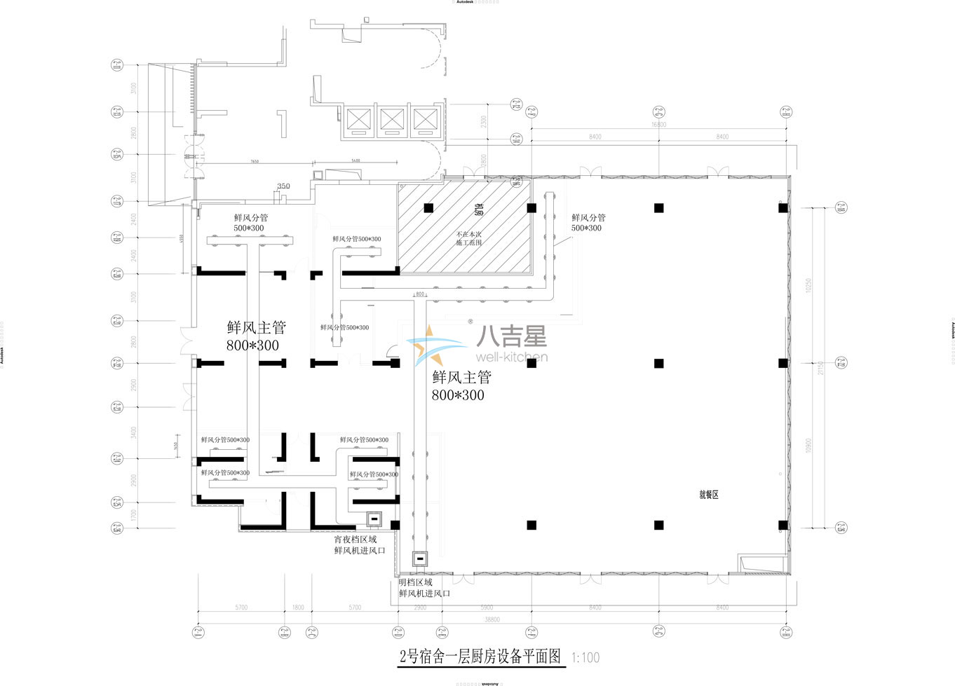
商用ky登录新风系统工程是油烟净化系统中重要的一环,主要由送风系统和排风系统组成的一套独立空气处理系统,对空气动力学,工业设计能力有严格的计算要求,优秀的新风系统可以高效提升ky登录油烟及时排出,减低ky登录整体温度,保持ky登录整体良好通风,大幅降低系统运行过程中的噪音,大幅提升ky登录工作环境状态。

八吉星拥有专业的空气动力学工程师,工业动力学工程师,专门进行ky登录新风系统送风系统和排风系统空气流动计算,可满足不同ky登录不同程度运行负荷下的空气流动需求并且配套行业专业排烟抽风设备品牌进行全系统量身设计,轻松达到强力通风的同时保持低噪音,提升油烟抽排效率,保持良好的ky登录工作环境,让顾客享受优质的餐饮环境。

所有商业餐饮场所,办公场所,地下超市等。
|
|
|
|
|
驰能专注ky登录新风系统工程,打造专属于您的ky登录新风系统工程
八吉星专业空气动力学工程师上门考察,可根据客户实际环境,ky登录运行负荷状况,油烟抽排状态等进行新风系统空气动力解决方案。

业内新风系统设备品牌商配套系统,囊括入门乃至高端等级,满足不同用户的设备需求配套。

专业油烟抽排工程师上门测量计算ky登录空气流动数据,ky登录负荷数据,通过空气动力学计算提供全套新风系统工程解决方案。

经过严格的空气动力学计算,确保ky登录在不同运营负荷状态下都能轻松达到目视无油烟,不影响ky登录工作环境,顾客餐饮环境。

八吉星新风系统工程可打造强力新风系统的同时保持低噪音影响,还你良好的ky登录工作环境。

全国统一服务体验,工厂直供ky登录设备配套,商用ky登录工程解决方案服务商
直属厨具设备生产厂家及研发基地,实现价格同步,价格透明可查。
全国各地设有办事处,快速响应客户ky登录工程需求上门服务。
专业ky登录工程师最快24小时内完成商用ky登录工程设计平面图。
驰能最快48小时内快速提供ky登录工程及设备报价清单。
驰能全国连锁式ky登录工程公司模式提供全国统一售后服务体验。
以倡导商用ky登录运作新模式、引领商用ky登录科技导向为己任,做客户身边可信赖的服务商。
其前身为广东明宝ky登录工程设备有限公司成立于2012年,从单一ky登录工程公司逐步成为一个全产业链化的综合型公司,为配合发展,于2020年整合明宝ky登录工程,2024年整合八吉星ky登录工程设备业务,线上销售业务、线下代理商渠道为ky登录。
相对于其他ky登录工程公司,驰能具有独特的互联网+基因。在2013年即启动电商营销团队。并携手多家专业商用ky登录设备品牌,并且连续5年全网销量第一。
您的基本数据有助于我们的设计师快速设计工程平面图及报价清单
我们需要根据您的ky登录面积,为您的ky登录设计功能性布局图。
我们需要根据您ky登录的用餐人数,对您的ky登录进行针对性地设计。
我们需要了解您ky登录每天的开餐次数,为您的ky登录设备设计提供参考。
我们需要提供给我们您食堂的标准定为:豪华的?普通的?大型的?小型的?
用户是企业发展的源泉。
优质产品,是走向世界的桥梁。
保证质量,是对社会的承诺。
用心服务
我用心 您放心
驰能ky登录工程用心践行,走好每一步,让客户安心。
通过咨询或填写表单,预约免费上门勘察
专业工程团队免费上门勘察,客户需求采集
根据客户需求以及现场考察,快速设计出稿
根据客户需求出稿后待客户确认设计图纸
专业施工团队,全程由工程负责人监督
配套ky登录设备定制完成后,有序运送进场
双方达成设计及工程服务共识,签订合同
根据确认图纸及配套设备48小时快速报价
专业检测人员对整套ky登录设备进行全面试运营
施工完成,试运营没问题后,供客户验收
进入正式运营,驰能专业团队前期运营指导
ky登录工程出现问题,均有专业人员上门服务
驰能品牌旗下ky登录工程公司
线上线下同步的商厨工程服务商
全国免费咨询热线:
400-888-4168
手机:134-1596-7896
联系人:谭经理
地址:广东省东莞市虎门镇虎越湾区一号5栋三楼
工程方案: