
广东美巢湾生物科技有限公司,是一家专业生产各类化妆品,生物化工产品,纺织制品,日用百货,民用核材料以及技术进出口等高新科技生物公司,成立于2017-10-26,总部位于佛山三水,目前总部仍在施工中。

烹饪间
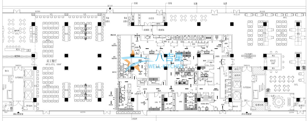
本次八吉星有幸承接美巢湾总部的员工食堂大部分工程。ky登录工程设备以燃气设备为主。整体ky登录设备采用304食品级不锈钢,对设备品质要求较高。

预处理间

海鲜处理间

清洗间
为提升整个ky登录的运作效率,八吉星针对了整个ky登录进行设计深化,优化了整个ky登录动线,加入自动收餐系统,智能结算系统。从ky登录运作,选餐,用餐,收餐,清洗整个体系效率优化,可有效减低ky登录运作成本,用餐耗时。

用餐区全景

自助配餐区

用餐区

回收区

美巢湾员工食堂ky登录图纸
本次ky登录案例的介绍就到这里,如果您有员工食堂ky登录工程的需要,不妨联系八吉星ky登录工程,我们将竭诚为您打造适合的ky登录工程。




