
虎门捷胜小学是经东莞市教育局批准开办的一所全日制、公益性、现代化、高品位新型学校。捷胜小学是我们八吉星ky登录工程的老客户,本次八吉星有幸再次服务于捷胜小学的旧ky登录改造工程。





虎门捷胜小学食堂ky登录烹饪区
本次旧ky登录改造工程主要是针对本次新冠疫情的实际情况进行改进,为降低在食堂用餐时可能存在的感染威胁,废弃过去学生集中用餐的食堂模式,采用ky登录统一供餐到各自课室用餐模式。

虎门捷胜小学食堂ky登录精加工区

虎门捷胜小学食堂ky登录冷藏冷冻区
为了满足这次ky登录改造要求,八吉星对整个ky登录进行重新设计,大幅扩大本次ky登录的面积,全套ky登录设备进行全面升级,提升整个ky登录的消毒杀菌设备的配置。


虎门捷胜小学食堂ky登录蔬菜粗加工区

去皮机

水触媒清洗机


虎门捷胜小学食堂ky登录肉类粗加工区

虎门捷胜小学食堂ky登录油烟净化系统
为了进一步提升食材的清洗能力以及品质,专门配备的“水触媒清洗机”为各种食材进行高品质清洗,搭配70平方米的“高温蒸汽消毒房”,对整个ky登录所有餐具,厨具每次使用后进行高温蒸汽消毒,全面杀灭各种致病病菌。

虎门捷胜小学食堂ky登录清洗区

虎门捷胜小学食堂ky登录高温蒸汽消毒房

虎门捷胜小学职工食堂

虎门捷胜小学职工食堂配餐间


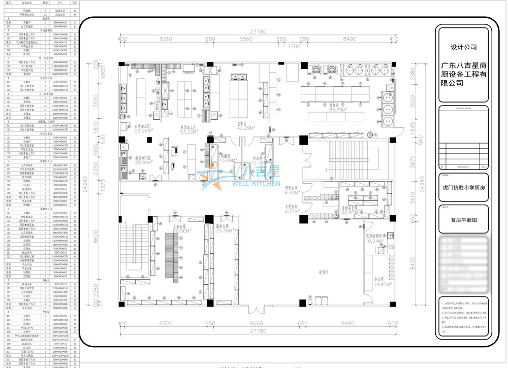
虎门捷胜小学食堂ky登录工程设计图
随着新冠疫情的发展,越来越多学校食堂对饮食安全,疫情抗疫越来越重视,为了满足这方面的需求,八吉星专门推出高温蒸汽消毒房,高温蒸汽消毒柜,红外线消毒柜,热风循环消毒系统等一系列针对ky登录消毒的ky登录工程改造。如果您有学校食堂ky登录工程,对ky登录消毒改造等一系列放满的需求,不妨联系八吉星,我们将会竭诚为您服务。




