
老佛爷炭火蛙锅是李(礼)家餐饮企业管理有限责任公司旗下的时尚美食品牌项目。老佛爷铜炉蛙锅是一家以炭火牛蛙为特色的餐饮品牌,在前期筹备项目时,试蛙千斤,经过不断对牛蛙吃法研究和摸索终于做出极品蛙锅,在哈尔滨、深圳两店同时启动,日日火爆。

老佛爷炭火蛙锅在广东省江门市江门万达广场筹备开门店时,八吉星商厨有幸与老佛爷炭火蛙锅达成合作,承接了老佛爷炭火蛙锅ky登录工程设计、商厨设备配套、施工安装等一体式服务。

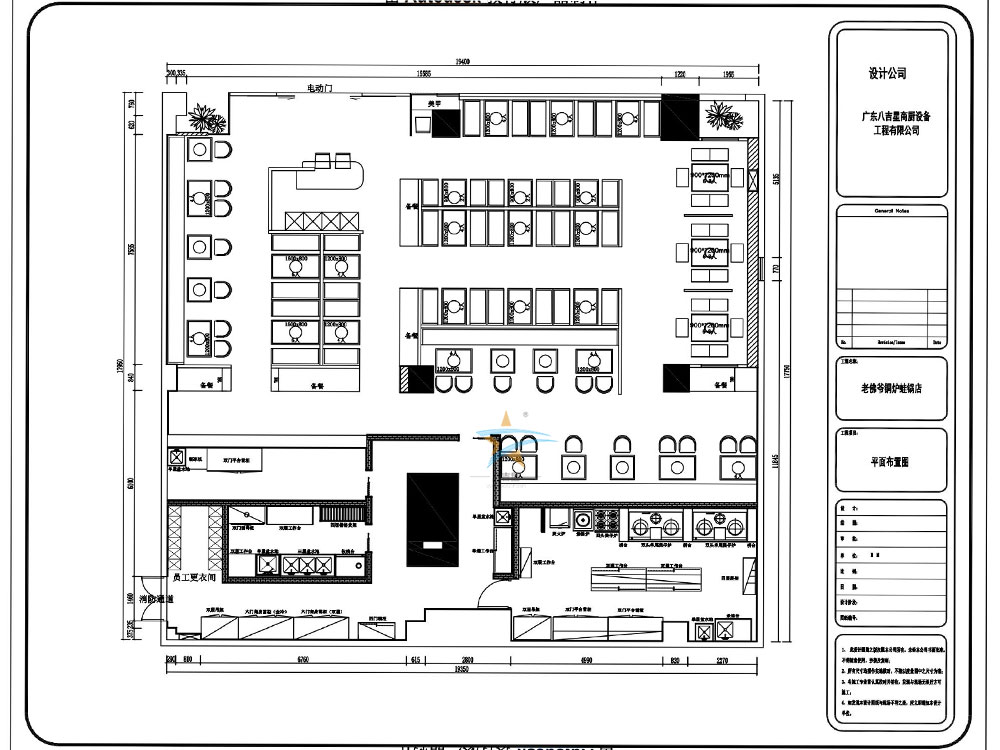
八吉星连锁餐饮ky登录工程师根据老佛爷品牌定位、店铺装修风格、菜品种类、加盟档位等多维度设计ky登录样式,为老佛爷量身定制连锁餐饮ky登录工程解决方案,配套五本品牌ky登录设备。

配套设备有:双头单尾小炒炉、电磁四头煲仔炉、双门平台雪柜、杀蛙台、单通传菜柜、分体式制冰机、双门消毒柜、六门高身雪柜、炭火炉、单头煲汤炉、拼炉台、抽油烟机等。

八吉星商厨初次与老佛爷炭火蛙锅合作商厨工程,从初步确认ky登录设计方案、ky登录设备报价、货物运输、安装到售后都深得客户的满意与信任。

今天,老佛爷炭火蛙锅在江门万达广场隆重开业了,承老佛爷炭火蛙锅邀请参加开业盛典,在此祝开张大吉,生意兴隆,财源广进,大展宏图。八吉星商厨感谢老佛爷炭火蛙锅的信任,您的满意是我们的追求,并期待我们还能再次合作!

八吉星商厨承接各类连锁餐饮ky登录工程设计、商用ky登录配套、商用ky登录改造等服务,可为您解决商用ky登录相关的问题,欢迎您的咨询。




