现在的您是不是在担心八吉星商用ky登录工程设计服务不好而不联系八吉星呢?其实,您真的不用担心的,虽然别家服务未能达到您的期望和满意,但是八吉星可以。请您花几分钟了解我们八吉星。

八吉星商用ky登录工程是一家成熟的商厨工程解决服务商,为满足各种餐饮行业的需求,联合市面上多家知名商厨设备厂家及16家直属ky登录设备生产基地,打造战略设备配套服务,无论是功能,材质还是外观均可根据装修风格进行定制。
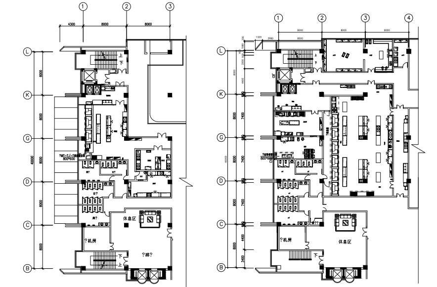
八吉星根据客户您的需求进行合理的设计ky登录
设计师需了解客户您的计划,对ky登录的技术要求、所需设备、餐位数量、设备的档次要求、特别的技术要求等等设计ky登录;ky登录工程设计过程中,八吉星设计师会上门现场勘查、积极主动的与客户联系、沟通、快速设计的过程与细节。
1)按照客户的要求,展开ky登录流程规划和各工作间的划分设计构思。
2)设计人员各工作区域划分、设备布局的初步设计时,与实际产生矛盾,要及时与客户和后厨工作人员联系,取得一致意见后进行设备布局详细设计。
3)在各工作间的划分和设备布局设计的初步设计上,要反复推敲,让ky登录更加科学合理。
4)方案审查确定后,再给客户、后厨工作人员查看,说明设计ky登录思路、意义、优点,特别是一些重点设计细节要着重加以说明,听取多方面意见。

八吉星专业ky登录工程师在获取客户基本工程需求后,最快24小时内(中小型商厨)完成专属于您的商用ky登录工程设计平面图。

八吉星已成交的商厨工程有:中央ky登录、大型食堂ky登录工程、连锁餐饮ky登录、社会餐饮ky登录、星级酒店ky登录等各类ky登录工程,也给商用ky登录餐饮企业配套全套设备。

以上内容图片均为八吉星所有,希望以上内容能解决您心中的担心,如若对八吉星还有其他质疑,八吉星诚邀您到我们的办公地和商厨设备生产基地视擦观摩。八吉星专业的商厨服务一定是您明智的选择。




